Noosa-Modular-home-tiny-homes-sunshine-coast-Lumen

Lumen

2

Bed

1

Bath

80m2

Size

Starting Price $278,000.00

The Lumen is a contemporary single-module modular home designed with clean architectural lines and a focus on light, space, and connection to the outdoors. Its efficient 80 m² layout is complemented by a generous 14 m² front deck, which forms a stylish and welcoming entry statement to the home.

Make An Enquiry about Lumen

Contact us today for a consultation and take the first step toward your new home.

Modular Homes

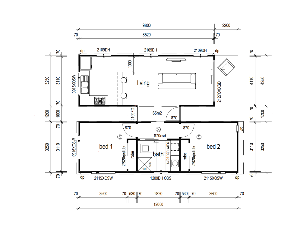
The floor plan

The Lumen is a contemporary single-module modular home designed with clean architectural lines and a focus on light, space, and connection to the outdoors. Its efficient 80 m² layout is complemented by a generous 14 m² front deck, which forms a stylish and welcoming entry statement to the home.
Inside, an open-plan living, dining, and kitchen area spans the full width of the design, creating a bright and inviting communal space. The modern kitchen features a central island with breakfast seating, while full-height glazing and sliding doors open onto the front deck — perfect for relaxing or entertaining.
Two spacious bedrooms are positioned at either end of the module, separated by a central bathroom and laundry zone for privacy and practicality. Each bedroom includes built-in robes and large windows that bring in plenty of natural light and ventilation.
With its skillion roofline, minimalist aesthetic, and balanced proportions, the Lumen achieves a sleek, modern look that suits a range of Queensland environments. Built on a durable steel subfloor system, this modular home can be quickly installed on-site, offering a stylish, low-maintenance, and transportable living solution.
The Lumen embodies Cobuilt Modular Homes’ commitment to smart design, efficient construction, and modern Australian living.

Custom designs

Looking for something custom?

All plans featured on our website that can be adjusted and customised to suit your preferences, or we can create a completely new design tailored to your needs. While we recommend specific materials, we’re happy to work with any style or look you desire.

Modular Homes

Why choose CoBuilt Modular Homes?

Our modular homes are designed and engineered for resilience and longevity. We guarantee quality and efficiency in every build.

Bespoke Designs

Custom built to suit your needs, preferences and site requirements.

Quality Construction

At CoBuilt Modular Homes we priortise strength and durability in every build.

Steel Sub Floor system

A robust steel foundation for superior strength, stability and transportability.

Timber Frame Construction

A time tested method providing structural integrity.

Lightweight Cladding

High performance materials that enhance durability, weather resistance and aesthetic appeal.

Speed and Efficiency

Our homes are built in a controlled workshop environment, free from delays or damage caused by weather. 

Transportable

CoBuilt Modular Homes are designed for easy relocation.

Sustainable and cost effective

Energy-efficient solutions for lower living costs or off-grid living.

Modular Homes

Hear from our happy clients

We’re here to ensure your new home exceeds expectations, offering support every step of the way. 

FAQs

Frequently Asked Questions

Still got questions? We’re here to help! Reach out to us today, and our team will gladly assist you with any additional information you need.

How are CoBuilt Modular Homes built?

When it comes to Transportable Prefabricated Modular Cabins and Homes, CoBuilt Modular Homes stands out as a beacon of efficiency and innovation. Our homes are meticulously produced in a controlled factory setting, ensuring a streamlined and rapid construction process compared to traditional on-site builds. The result? Less build time on-site, meaning you get to enjoy your dream home sooner.

At CoBuilt Modular Homes, our commitment to excellence extends to compliance with local regulations, ensuring that your Prefabricated Modular Cabin or Home seamlessly integrates with specific requirements of your location. We understand that each region comes with its own set of building codes and zoning regulations. With CoBuilt Modular Homes, you can rest assured that our homes are not just efficient and sustainable but also meticulously designed to meet or exceed local standards. Choosing CoBuilt Modular Homes means choosing a home that is not only a testament to modern design but also a compliant and legally sound investment in your chosen locale.

At CoBuilt Modular Homes, we take pride in not only creating stunning Prefabricated homes but also doing so with a keen eye on sustainability. Our commitment to efficient and organized production extends beyond speed – it’s about maximizing sustainability. We use cutting-edge building products to ensure that our homes are not only built quickly but also with a focus on efficiency and environmental consciousness, offering you a home that aligns with your values.

Modular Homes

Explore our range of modular homes

At CoBuilt Modular Homes, we offer a range of plans to suit your needs, from cozy one-bedroom cabins to spacious two-bedroom (or more!) modular homes. We’re here to collaborate with you, bringing your vision to life by designing the layout and selecting finishes that reflect your personal style. After all, it’s your home – and it should be tailored perfectly to you.

Get in touch

Ready to build your dream modular home?